Due to the health concerns created by Coronavirus we are offering personal 1-1 online video walkthough tours where possible.




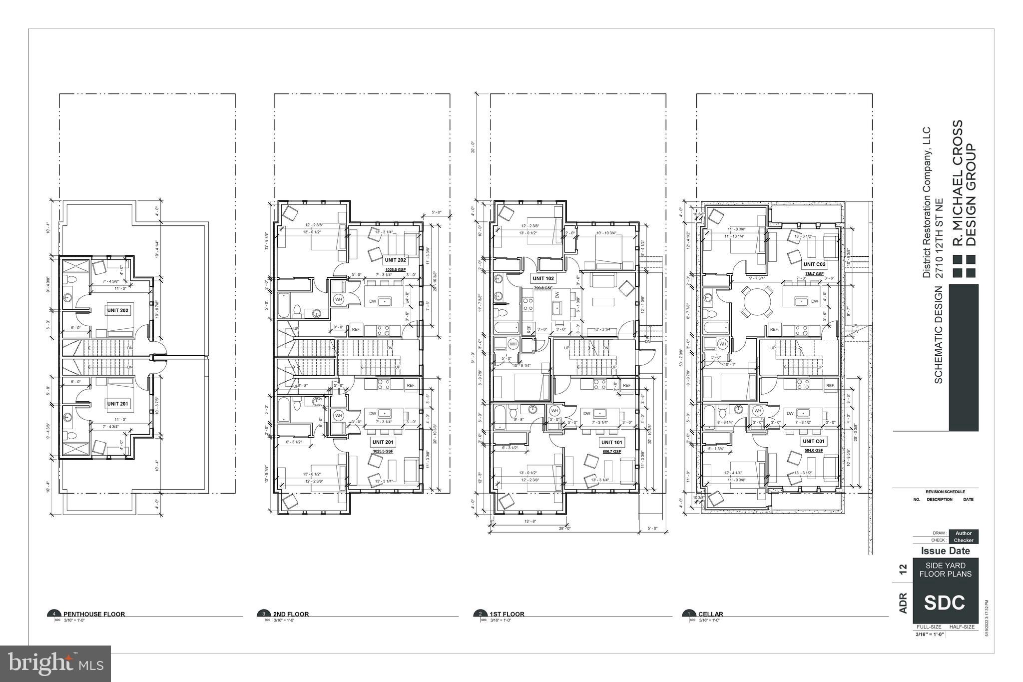
For an Investor/Builder/Developer/Restauranteur or house hacking primary residence owner. Create this potential 6 unit building and sell as condos or don’t subdivide it and hold as a 6 unit apartment. Or live in one unit and rent / AirBnB the others. Or create a brand new restaurant. This commercially zoned vacant lot is perfect for a by right project as it helps avoid so many of the complexities associated with adding to DC’s housing stock. --No chimney setback issues --No adjoining property on either side that would cause 10’ rule --The previous structure was already demolished eliminating that risk and cost --There’s no required lengthy underpinning of adjoining structures --The property already has a curb cut. --Schematic Design phase with Cross Design Group already paid for. --New structure would still not connect to neighboring structures on either side. The architecture firm has determined there’s a total buildable square footage of 5,184sf if you go for the IZ bonus. Please see the prospective pro forma in the photos that is made in accordance with the buildable square footage and uses a cost of construction equal to $225 per sf. The property is fenced off for safety so please view property at your own risk.
| 11 months ago | Price changed to $564,200 | |
| 11 months ago | Listing updated with changes from the MLS® | |
| 2 years ago | Status changed to Active | |
| 2 years ago | Listing first seen on site |
Did you know? You can invite friends and family to your search. They can join your search, rate and discuss listings with you.